Проект А59

Рассчитать стоимость

Описание проекта

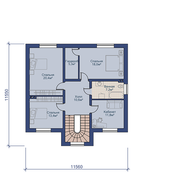
Огромное окно лестничного холла этого дома не только украшает парадный фасад, но и делает интерьер дома просторным и воздушным. Общественная, приватная и техническая зоны очень хорошо разграничены. Если на первом этаже помещения кухни, столовой и гостиной плавно перетекают друг в друга, то на втором этаже расположены полностью изолированные комфортные спальни, личный кабинет и ванная комната. Четкие формы, симметрия и отсутствие лишних деталей делают этот дом привлекательным и респектабельным. 
1 этаж  136.7 м²


2 этаж  86.7 м²





Хотите изменить планировку?

Это совсем просто! Назначьте встречу с одним из наших архитекторов, и на основании ваших идей он создаст индивидуальные планировки.

Изменить планировку

ПРОЕКТ А59

Рассчитать стоимость

Описание проекта

Огромное окно лестничного холла этого дома не только украшает парадный фасад, но и делает интерьер дома просторным и воздушным. Общественная, приватная и техническая зоны очень хорошо разграничены. Если на первом этаже помещения кухни, столовой и гостиной плавно перетекают друг в друга, то на втором этаже расположены полностью изолированные комфортные спальни, личный кабинет и ванная комната. Четкие формы, симметрия и отсутствие лишних деталей делают этот дом привлекательным и респектабельным. 

Хотите изменить планировку?

Это совсем просто! Назначьте встречу с одним из наших архитекторов, и на основании ваших идей он создаст индивидуальные планировки.

Изменить планировку