Проект А58

Рассчитать стоимость

Описание проекта

Красивый современный европейский дом. Рассчитан на семью из 3-4 человек.
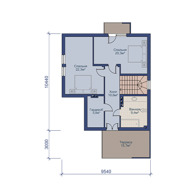
1 этаж  97.2 м²


2 этаж  80.1 м²





Хотите изменить планировку?

Это совсем просто! Назначьте встречу с одним из наших архитекторов, и на основании ваших идей он создаст индивидуальные планировки.

Изменить планировку

ПРОЕКТ А58

Рассчитать стоимость

Описание проекта

Красивый современный европейский дом. Рассчитан на семью из 3-4 человек.

Хотите изменить планировку?

Это совсем просто! Назначьте встречу с одним из наших архитекторов, и на основании ваших идей он создаст индивидуальные планировки.

Изменить планировку